Vers le haut
     Projets      En cours     Atelier    Contact
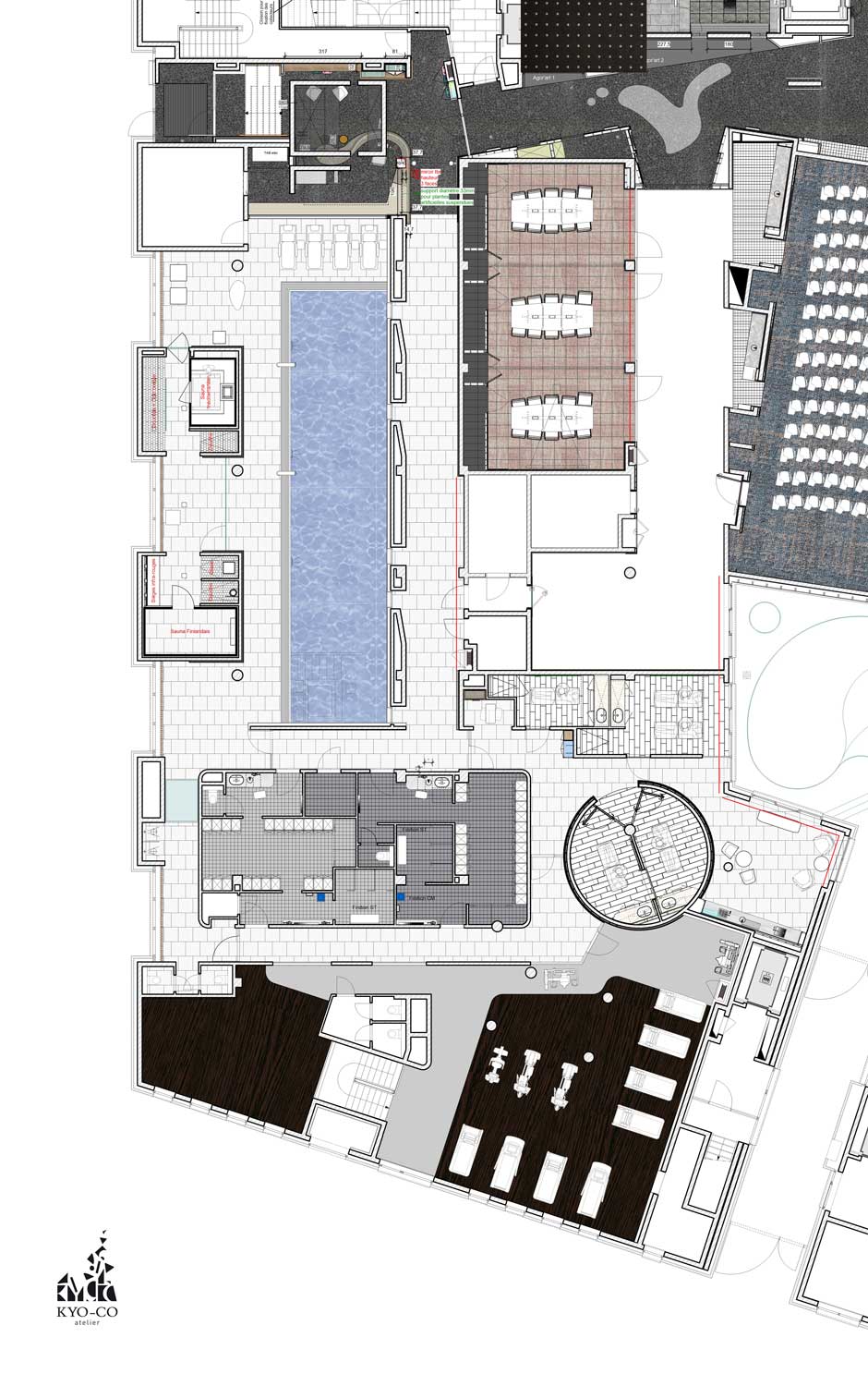
_  Spa Martin's LLN